Natterer See, Rakúsko, Tirolské Alpy, Stubaital, 2.11.2025, Bez stravy
» Rakúsko » Natterer See » Natterer See
Natterer See
Natterer See
Natterer See
Natterer See
Natterer See
Názov zájazdu podľa organizátora: Prázdninová vesnička Natterer See
Poloha
Natterer See, centrum Neu Götzens - 1,4 km, skiareál ľadovec Stubaier Gletscher - 42,5 km; Innsbruck - 9,2 km
upresnenie
Úplne jedinečný ubytovací komplex pozostávajúci z apartmánových budov s apartmánmi typu trilo Pine a Larch, mobilných domov resp. chaletov Graz a Wien a samostatne stojacich drevených domčekov Tiny Home. V centrálnej budove sa nachádza recepcia, bistro, terasa, konferenčná miestnosť, úschovňa lyží a detská herňa. Uvedené vzdialenosti sú merané od recepcie.
popis apartmánov
bilo 2 Tiny Home: 30 m² - spálňa s manželskou posteľou na otvorenom poschodí, obývacia izba s kuchynským kútom a gaučom, sociálne zariadenie, terasa, súkromné parkovacie státie (1 miesto / apartmán)
#trilo 3/4 Pine: 37 m² - 1 spálňa s manželskou posteľou, menšia spálňa s poschodovou posteľou, obývacia izba s kuchynským kútom, sociálne zariadenie, oddelené WC, terasa s predzáhradkou, súkromné parkovacie státie (1 miesto / apartmán)
#trilo 4 Larch: 57 m² - 1 spálňa s manželskou posteľou, spálňa s 2 samostatnými lôžkami alebo poschodovou posteľou, obývacia izba s gaučom a kuchynským kútom, 2× sociálne zariadenie, 1× oddelené WC, terasa s predzáhradkou, súkromné parkovacie státie (1 miesto / apartmán)
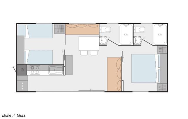
#chalet 4 Graz: 34 m² - 1 spálňa s manželskou posteľou, menšia spálňa s 2 samostatnými lôžkami, obývacia izba s gaučom a kuchynským kútom, 2× sociálne zariadenie, terasa, súkromné parkovacie státie (1 miesto / apartmán)
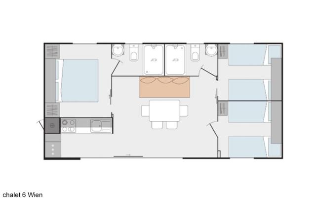
#chalet 6 Wien: 40 m² - 1 spálňa s manželskou posteľou, 2 spálne s 2 samostatnými lôžkami, obývacia izba s gaučom a kuchynským kútom, 2× sociálne zariadenie, terasa, súkromné parkovacie státie (1 miesto / apartmán)
#Wood Lodge Panorama 2: 25 m² - spálňa s manželskou posteľou, opticky oddelená obývacia izba s kuchynským kútom, sociálne zariadenie, terasa, súkromné parkovacie státie (1 miesto / apartmán)
#Wood Lodge Family 2/3/4: 25 m² - obývacia izba s manželskou posteľou a poschodovou posteľou pre 2 osoby, kuchynský kút, sociálne zariadenie, terasa, súkromné parkovacie státie (1 miesto / apartmán)
vybavenosť apartmánov
TV sat., fén, trezor, umývačka riadu, mikrovlnná rúra, kávovar Nespresso (na kapsule), wi-fi pripojenie k internetu
dĺžka pobytu
pevne dané päťdňové pobyty od nedele do piatku a štvordňové pobyty od nedele do štvrtka, resp. týždňové pobyty na požiadanie
Vzdalenost od sjezdovky
42500
Výhody a nevýhody
nádherný a jedinečne pestrý rezort uprostred zelene, priamo pri jazere Nattersee#chalety a apartmány rôznych veľkostí a typov pre 2 až 6 osôb, ponúkajúce luxusnú a netradičnú dovolenku#niekoľko lyžiarskych stredísk v blízkom okolí, vrátane ľadovca Stubaital#na jar poteší výhľad do rozsiahleho zeleného parku či možnosť otužovania v jazere#v cene aj zaujímavá Innsbruck Welcome Card s množstvom výhod#menšie spálne (-)#za lyžovaním sa dá dostať len autom (-)
Výhody strediska
- jedno z najznámejších a najobľúbenejších rakúskych stredisiek#- čo sa týka počtu kilometrov zjazdoviek najväčší rakúsky ľadovcový lyžiarsky areál#- poloha v blízkosti Innsbrucku láka návštevníkov k spojeniu športovej dovolenky s prehliadkou tejto tirolskej metropoly a dvojnásobného hostiteľa Zimných olympijských hier#- nositeľ pečate ADAC "najzábavnejšií skiareál Álp" ako ohodnotenie vysokej kvality služieb Stubaia#- komplexná ponuka takmer stovky kilometrov zjazdových tratí pre skúsených aj začínajúcich lyžiarov#- 4 hlavné strediská v čele s dominantným ľadovcom Stubaier Gletscher so 64 km zjazdových tratí#- menšie, ale nie nezajímavé skiareály Schlick 2000, Elfer Skigebiet a Serles / Mieders, spestrujúce lyžiarsku ponuku Stubai nižšie v údolí#- kolotoč zjazdoviek okolo Schaufelspitze spájajúci preslnené svahy na Gaisskare s Fernau - Ferners, centrom vyznávačov freeridu, takmer celoročne perfektné podmienky na všetkých 64 km zjazdových tratí a 26 moderných prepravných zariadení, predovšetkým pohodlných gondol a sedačkových lanoviek, korunujúci "Stubai" na absolútneho kráľa ľadovcov#- nádherný 10 km dlhý neupravený zjazd Wilde Grub'n z ľadovca až k spodnej stanici gondoly, carvingová trať alebo najvyššie položená reštaurácia v Rakúsku Jochdohle (3.150 m n. m.) ako klenoty v kráľovskej korune Stubaia#- celkovo prevládajúce veľmi široké, prašanom pokryté pisty, ideálne najmä na carving#- od roka 2016 nová 32-miestna kabína 3S Eisgratbahn skracuje čakaciu dobu počas ranného návalu na úplné minimum#- Stubaier Gletscher ideálnym miestom pre rodinné lyžovanie s množstvom atrakcií - veľký detský park, od sezóny 2018/19 potom tiež nový BIG Family Fun Slope so skokmi a terénnymi vlnami#- Big Ronn's Kinderland v skiareáli Schlick 2000 alebo detský Skiklub Micky Maus s množstvom atrakcií#- na ľadovci lyžujú deti až do veku nedovŕšených 10 rokov v sprievode rodičov zadarmo, v stredisku Schlick 2000 až do nedovŕšených 9 rokov#- na snowboradistov čakajú funparky na ľadovci a v Schlick 2000#- pre lyžiarov-bežcov zase 5 km dlhý upravovaný okruh na ľadovci vo výške 2.600 m n. m. alebo cez 100 km tratí v údolí#- možnosť vyskúšať si lezecké schopnosti na známej umelej ľadovej veži alebo odvahu na 5 sánkarských dráhach, vrátane najdlhšej prírodnej dráhy v Rakúsku#- romantická Stubaitalbahn, elektrická železnica z roku 1904, spájajúca Innsbruck s mestečkom Fulpmes a ponúkajúca prechádzku dĺžky 18,2 km#- minuloročnou novinkou skipas SKI plus CITY Pass platiaci v celkom 13 strediskách a prinášajúci množstvo výhod i mimo lyžovanie - napr. voľné využívanie siete skibusov, bezplatnú návštevu bazéna v Neustiffe, jedonárzový 4-hodinový vstup do wellness strediska Freizeitbad StuBay v Telfes, ale aj množstvo ďaľších bezplatných služieb v Insbrucku a okolí ako napr. voľný vstup na skokanský mostík Bergisel či do múzea Swarovski Kristallwelten#- očarujúca, miestami až gýčovito romantická atmosféra typických tirolských dediniek obklopených zasneženými vrcholkami okolitých horských velikánov#- nadmieru pohodlná cesta takmer výhradne po diaľnici
Nevýhody strediska
- vzájomná lyžiarska neprepojenosť jednotlivých skiareálovnie#- nie príliš vysoké percento upravovaných "čiernych" vyššia cena zodpovedajúca vysokému dopytu po tomto ľahko dostupnom údolí a výbornej úrovni jeho služieb#- hroziaca preplnenosť cez víkendy#- k ľadovcu nutné dochádzanie
Info o skiarealu
Typ skipasu
SKI plus CITY Pass platí od 2 dní v 13 skiareáloch: Stubaier Gletscher, Axamer Lizum, Schlick 2000, Kühtai, Hochötz, Muttereralm, Bergeralm, Nordkette, Serles/Mieders, Elfer, Patscherkofel, Rangger Köpfl a Glungezer; ďalej platí na voľné využívanie siete skibusov, bezplatnú návštevu bazéna v Neustiftu, jednorázový 4-hodinový vstup do wellness strediska Freizeitbad StuBay v Telfes, 1x návštevu bazéna v Axams, množstvo bezplatných služieb v Innsbrucku a jeho okolí, ako napr. voľný vstup na skokanský mostík Bergisel, do Alpenzoo, do Hofburgu (niekdajšie sídlo tirolských zemských kniežat v Innsbrucku) či do múzea Swarovski Kristallwelten vo Wattens
Stubaier Gletscher, Schlick 2000, Elfer Skigebiet a Serles/Mieders: platí pre jednotlivé skiareály Stubaier Gletscher, Schlick 2000, Elfer Skigebiet a Serles/Mieders; nezahrňuje vstup do bazénu#Skibus
skibusy medzi jednotlivými mestečkami a najbližším skiareálom; pravidelné skibusové linky medzi všetkými mestečkami v údolí a ľadovcom Stubaier Gletscher#Kategorie skipasu
dôležité upozornenie: Skipasy "Stubaier Gletscher" je možné vyzdvihnúť len v turistickom informačnom stredisku v Neustift im Stubaital (TVB Stubai Tirol). V pokladni v stredisku nebude voucher CK akceptovaný.
: čerpanie každého skipasu kategórie bimbo je podmienené doprovodom práve jednej dospelej osoby s rovnakým skipasom čo sa týka plošnej platnosti aj dĺžky a termínu platnosti
povinné príplatky
pobytová taxa: 3 € / noc / os. od 14 rokov
fakultatívne príplatky
detská postielka: 10 € / pobyt (je potrebné vopred overiť v CK)#parkovacie miesto: zadarmo#WiFi pripojenie: zadarmo

Odoslaním tohto formulára vykonáte nezáväznú objednávku. Po odoslaní budete kontaktovaní pracovníkom našej spoločnosti, ktorý Vám poskytne ďalšie informácie a vybaví potrebné formality.

Zloženie osôb
Kalkulácia
Izba
Príplatky a zľavy
Celková cena: 0
Kontaktné údaje objednávateľa
Údaje o cestujúcich Kopírovať údaje z objednávateľa do 1. cestujúceho
Pohlavie Meno Priezvisko Dátum narodenia (deň.mesiac.rok) Národnosť
 
Poznámka:

Konečná cena bude potvrdená naším pracovníkom. Zľavy na dieťa, detské ceny platia len pre dieťa na prístelke, t.j. pokiaľ cestujú dvaja dospelí + dieťa. Pokiaľ je forma ubytovania apartmán, štúdio, potom platí cena za osobu len pri plnom obsadení apartmánu, štúdia. Pokiaľ nie jeuvedené inak.

Pokiaľ urobíte na našej web stránke žiadosť o rezerváciu, my overíme aktuálnu volnú kapacitu, presný termín odchodu a príchodu, aktuálnu cenu a výšku všetkých povinných a nepovinných príplatkov.Ako náhle budeme mať všetko overené a potvrdené, ihneď sa s Vami spojíme, potvrdíme Vám rezerváciu a potom Vám prepošleme vyplnenú cestovnú zmluvu a pokyny k tomu ako všetko vybaviť. Zmena ceny, termínov a povinných príplatkov vyhradená.

Záväznú cenu vrátane všetkých poplatkov a príplatkov, presné termíny odchodu a príchodu Vám samozrejme radi na požiadanie overíme. Cena sa môže zmeniť, a to i v závislosti na cene letenky a povinných príplatkov (letiskových a bezpečnostných tax, palivového príplatku, a pod.). Presný čas odletu potvrdzuje letecká spoločnosť väčšinou cca 5-7 dní pred odletom. Skôr ho väčšinou nie sme schopní zistiť.

Umiestnenie ubytovacieho zariadenia na mape má len informatívny charakter a je poskytované bez záruky.

Nahrávám...
Schránka
0 zájazdov v schránke